The fresh water tank level indicator in my 99 JC is not working.
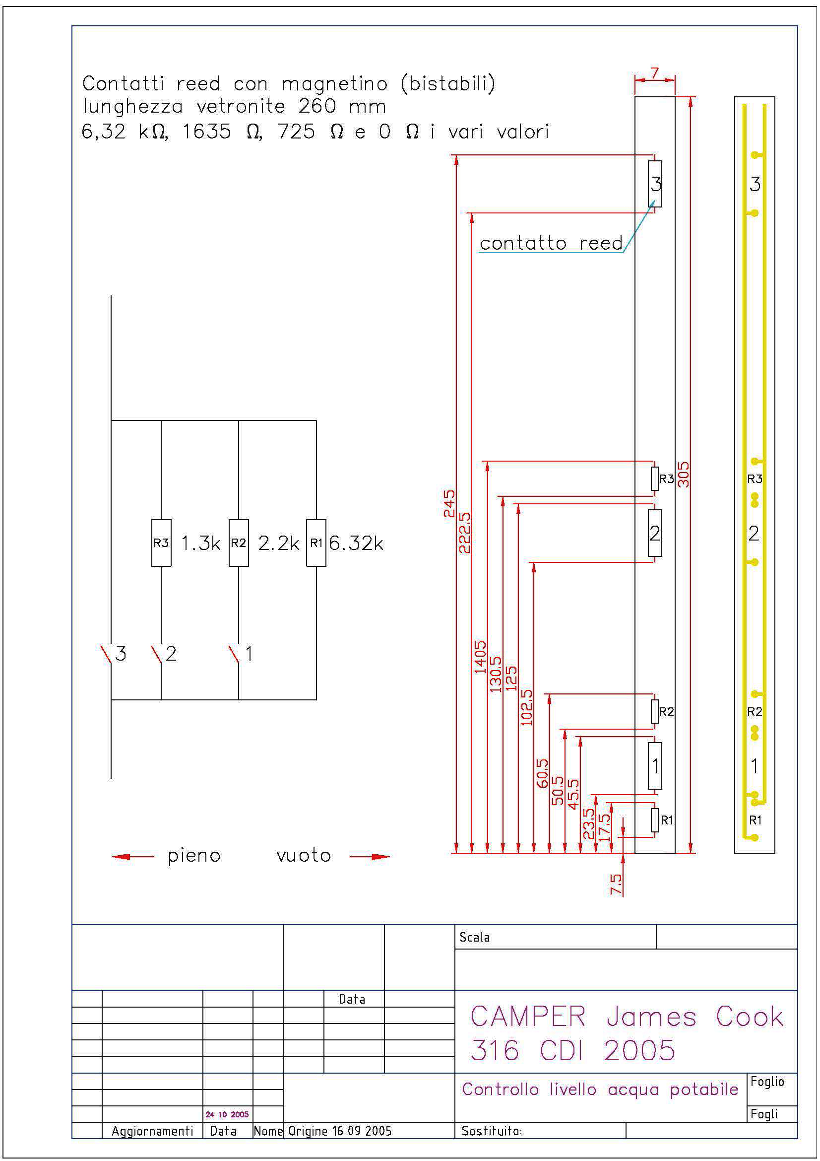
I have found a diagram of the electronics inside (kindly posted by a member of this forum):

And I have rebuilt it using new resistors and reed switches:

Everything is working as per the schematic. However, I'm facing an issue and I'm not sure why or how to solve it. The indicator panel shows the right number of bars when the floating magnet is near one of the reed switches, which is correct. However, there's plenty of areas where the magnet does not activate any switch (they are far apart) and, in that case, the display shows an empty tank (reads 6.2kΩ) which, although expected by looking at the schematic, is the wrong behaviour.
How is the panel supposed to know the water level in the tank when the floating magnet is not activating any of the magnetic switches??
Thank you!